Lote à Venda, 139m²
Estrada do CapuavaChácara Ondas Verdes (Zona Oeste), Cotia - SP
Informações
- Aceita FinanciamentoSimular Financimento
Medidas
- Área Total: 139m²
- Terreno Área Total: 139m²
Descrição
OPORTUNIDADE ÚNICA PARA INVESTIDORES: LOTE COMERCIAL COM PROJETO DE GALPÃO JÁ EM APROVAÇÃO!
Apresentamos uma oportunidade imperdível para investidores que buscam agilidade e rentabilidade no mercado! Este lote estratégico, com 138,69 m², oferece o cenário perfeito para o seu próximo empreendimento comercial.
Situado em uma localização privilegiada e com Zoneamento ZUM (Corredor Comercial), este terreno já está limpo de vegetação, pronto para receber sua construção.
O Grande Diferencial:
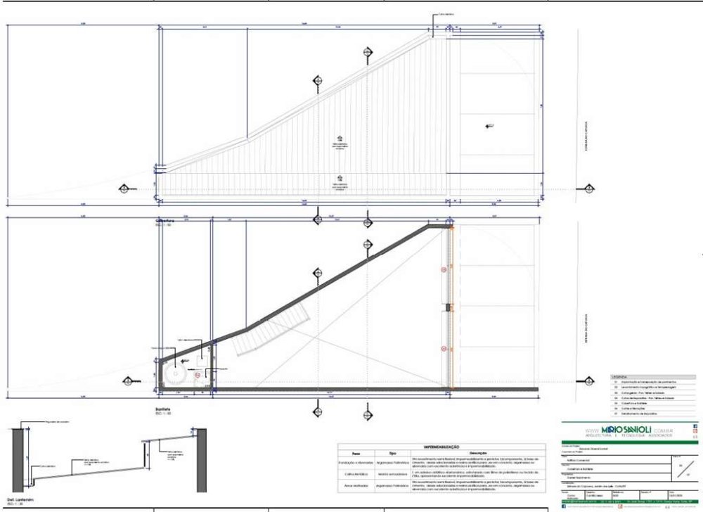
Projeto de Galpão em Andamento: Pensando na sua comodidade e otimização de tempo, o imóvel já possui um projeto completo para a construção de um galpão, com imagens disponíveis no álbum de fotos e a documentação completa em PDF.
Aprovação Acelerada: O processo de aprovação na Prefeitura já está em curso (Processo 12.969/2024), o que significa menos burocracia e mais rapidez para você iniciar sua obra.
Área Construída Otimizada: O projeto prevê uma área total construída de 133,40 m², distribuídos de forma inteligente em:
Pavimento Térreo: 91,66 m²
Subsolo: 41,74 m²
Este é o investimento ideal para quem busca construir ou expandir seus negócios em uma área de alto potencial comercial, com a vantagem de ter um projeto avançado e em fase final de aprovação. Reduza custos e prazos de planejamento e comece a construir seu futuro hoje mesmo!
Informações Adicionais:
Projetos Detalhados: Arquivos do projeto em PDF disponíveis para consulta.
Suporte Técnico: Contato da firma de arquitetura responsável pelo projeto disponível mediante solicitação.
Não perca tempo! Entre em contato para saber mais detalhes e garanta essa excelente oportunidade de negócio!


