Área à Venda, 2.635 m²
Rua das CaméliasGranja Viana (Zona Oeste), Carapicuíba - SP

Informações
- Posição: Voltado P/ Área Preservada
- Em Condomínio
- Condomínio: Fazendinha
- Aceita FinanciamentoSimular Financimento
Medidas
- Área Total: 2.635 m²
- Terreno Área Total: 2.635 m²
- Terreno Frente: 30,50 m
- Terreno Esquerda: 80 m
- Terreno Direita: 80 m
Descrição
Oportunidade Excelente para Incorporadores: Terreno com Projeto Aprovado
Apresentamos uma excelente oportunidade para incorporadores que buscam um investimento estratégico e de alto potencial. Este terreno, com projeto aprovado, está pronto para dar início a um empreendimento residencial de sucesso.
Características do Terreno:
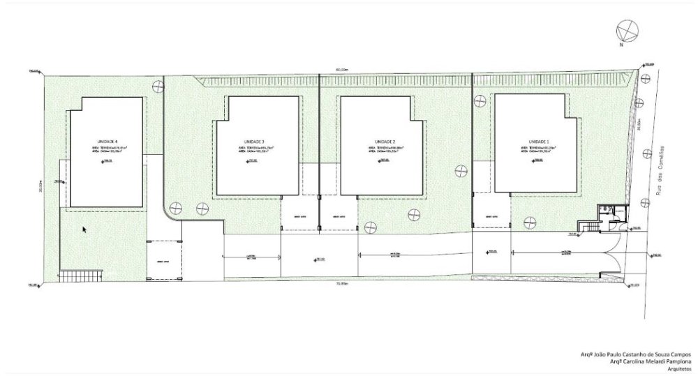
Dimensões e Topografia: Com 2.635 m², o terreno oferece uma frente de 30,5 metros para a rua e uma área de preservação, 80 metros nas laterais e 30 metros nos fundos. A topografia é 80% plana, com um aclive suave na frente e declive suave nos fundos, facilitando o desenvolvimento do projeto.
Localização Privilegiada: Frente para uma Área de Preservação Permanente (APP), proporcionando uma vista deslumbrante e um ambiente tranquilo e integrado à natureza.
Pronto para Construção: O terreno está sem vegetação e já possui terraplenagem concluída, permitindo o início imediato das obras.
Projeto Aprovado:
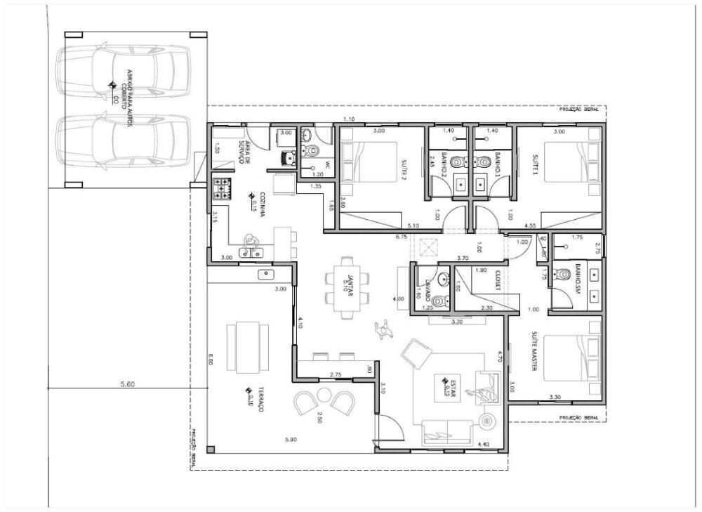
Residências Planejadas: O projeto aprovado contempla a construção de quatro casas térreas, cada uma com 185 m², oferecendo um design moderno e funcional, perfeito para atender às demandas do mercado atual.
Vantagens Adicionais:
Proximidade com a Escola da Carol: Localizado ao lado de uma instituição educacional, o terreno tem um apelo adicional para famílias que buscam conveniência e qualidade de vida.
Potencial de Valorização: A localização estratégica e o projeto aprovado oferecem um alto potencial de valorização, tornando este investimento ainda mais atraente para incorporadores.
A Fazendinha é um "pedaço" muito especial da Granja Viana, um local com muito verde, vistas maravilhosas, condomínios fechados de todos os portes (grandes, médios e pequenos), algumas ruas fechadas e vias principais abertas para passagem, pois faz a ligação entre Carapicuíba e Jandira, ligando a Granja Viana à região da Est. Fernando Nobre (Km 28 da Raposo), sem depender da Rod. Raposo Tavares.
Esta é a oportunidade perfeita para desenvolver um empreendimento residencial de sucesso em uma região em crescimento. Não perca a chance de investir em um projeto com aprovação já garantida. Entre em contato para mais informações e agende uma visita ao local!
O que tem perto?
- Açougue, Feiras e Supermercados
- Baladas
- Centrinho
- Comércio
- Escolas Particulares
- Escolas Públicas
- Faculdade
- Farmácia
- Parque
- Ponto de Oníbus
- Ponto de táxi
- Posto de Gasolina
- Posto de Saúde
- Restaurantes
- Shopping










